PORIN MÄNTYLUODON KOULU
MÄNTYLUOTO SCHOOL IN PORI




PORIN MÄNTYLUODON KOULU
MÄNTYLUOTO SCHOOL IN PORI
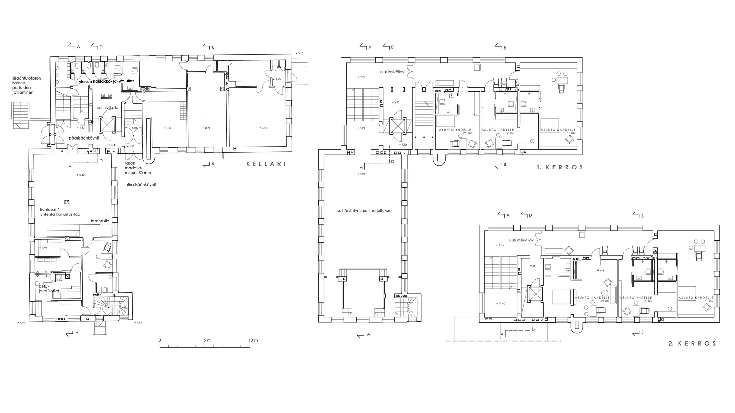
Porin Mäntyluodossa sijaitseva koulu on ollut lähes tyhjillään jo vuosia, mutta on toistaiseksi hyväkuntoinen. Vuonna 1939 valmistunut, kaupunginarkkitehti Jaakko Laaksovirran suunnittelema koulu on luokiteltu maakunnallisesti merkittäväksi suojeltavaksi rakennukseksi. Nykyinen asemakaava sallii muutoksia sisätiloissa.
Olen luonnostellut suunnitelmat, jotka osoittavat, että vanhan koulurakennuksen saa muutettua esteettömäksi tilaksi lisäämällä hissin porrashuoneen viereen rakennettavaan kuiluun. Luokkahuonesiipeen voidaan sijoittaa asuntoja kahteen kerrokseen rakentamalla wc- ja pesutilat. Koulun juhlasalissa voi harjoitella musiikkiesityksiä ja pitää yleisötilaisuuksia.
Voisiko koulusta korjata kauniille paikalle Uuniluodon sataman läheisyyteen sijoittuvan musiikkikeskuksen, jossa esimerkiksi eläköityneet jazz-muusikot asuisivat?
The school in Mäntyluoto in Pori has been empty for years but the building is in a good condition, at least for now. The school was built in 1939 and it was designed by the city’s architect Jaakko Laaksovirta. The building has been evaluated as regionally significant and it is protected in the detail plan. The current zoning plan allows changes to the interior of the building.
I have sketched plans that show that the old school building can be transformed into an accessible space by adding an elevator to the shaft, built next to the stairwell. Apartments can be placed on two floors in the classroom wing by adding toilets and bathrooms. In the school gymnasium, you can practice musical performances and hold public events.
Would it be possible to renovate the school building in a beautiful place near the harbour of Uuniluoto where for example retired jazz musicians could live?



